P96

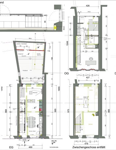
Umbau – Einfamilienhaus

Bauort
88069 Tettnang

Nutzung
Einfamilienhaus

Konstruktion
Massivhaus

Gebäudetechnik/Ökologie
kontrollierte dezentrale Wohnraumlüftung,
Solaranlage, 3-Fach-Verglasung, KFW 85 Haus

DSGVO Cookie Consent mit Real Cookie Banner